Bebauungsplan
LAUFENDE VERFAHREN | FERTIGGESTELLTE VERFAHREN
laufende Verfahren
fertiggestellte Verfahren
Bekanntmachung zum Satzungsbeschluss des Bebauungsplans „Solarpark Spechtritz“ sowie zur Genehmigung der 3. Änderung des Flächennutzungsplans der Stadt Rabenau im Bereich des BPlans
Der Stadtrat der Stadt Rabenau hat am 19.05.2025 in seiner öffentlichen Sitzung den Bebauungsplan „Solarpark Spechtritz“ für die Flurstücke 51, 54/4, 54/8, 56/1, 61, 66, 69, 76, 83 und 94 der Gemarkung Spechtritz als Satzung beschlossen.
Maßgebend ist die Planzeichnung des Bebauungsplans, die Begründung und der
Umweltbericht mit sämtlichen Anlagen in der Fassung vom 01.04.2025. Der
Planbereich ist in folgendem Kartenausschnitt dargestellt:
Der Bebauungsplan „Solarpark Spechtritz“, tritt mit dieser Bekanntmachung in Kraft (§ 10 Abs. 3 BauGB).
Die 3. Änderung des Flächennutzungsplans wurde ebenso in der Sitzung des Stadtrates der Stadt Rabenau am 19.05.2025 beschlossen. Der folgende Kartenausschnitt ist für die Änderung maßgeblich:
Das Landratsamt Sächsische Schweiz-Osterzgebirge hat die vom Stadtrat der Stadt Rabenau in öffentlicher Sitzung beschlossene 3. Änderung des Flächennutzungsplans der Stadt Rabenau in der Fassung vom 01.04.2025 mit Bescheid vom 23.06.2025, Az.: 0004-14.6.28-621.3-300.000-01.3, aufgrund von § 6 Abs. 1 Baugesetzbuch (BauGB) genehmigt.
Die 3. Änderung des Flächennutzungsplans der Stadt Rabenau wird mit dieser
Bekanntmachung wirksam.
Jedermann kann den Bebauungsplan „Solarpark Spechtritz“ und die 3. Änderung des Flächennutzungsplans der Stadt Rabenau mit der jeweiligen dazugehörigen Begründung, dem Umweltbericht und den Anlagen sowie die zusammenfassende Erklärung nach § 6 Abs. 5 BauGB im Bauamt der Stadtverwaltung Rabenau, 2. Obergeschoss rechts, Markt 3, 01734 Rabenau, zu den üblichen Dienststunden einsehen und über den Inhalt Auskunft verlangen. Des Weiteren werden der Bebauungsplan und die 3. Änderung des Flächennutzungsplans auch auf der Homepage der Stadt Rabenau unter www.stadt-rabenau.de und in das zentrale Internetportal des Landes Sachsen unter www.bauleitplanung.sachsen.de eingestellt.
Auf die Vorschriften des § 44 Abs. 3 Satz 1 und 2 BauGB über die Fälligkeit etwaiger Entschädigungsansprüche, deren Leistung schriftlich beim Entschädigungspflichtigen zu beantragen ist, und des § 44 Abs. 4 BauGB über das Erlöschen von Entschädigungsansprüchen wird hingewiesen.
Auf die Voraussetzungen für die Geltendmachung der Verletzung von Verfahrens und Formvorschriften und von Mängeln der Abwägung sowie Rechtsfolgen des § 215 Abs. 1 BauGB wird hingewiesen. Unbeachtlich werden demnach
1. eine nach § 214 Abs. 1 Satz 1 Nr. 1 bis 3 des BauGB beachtliche Verletzung der dort bezeichneten Verfahrens- und Formvorschriften,
2. eine unter Berücksichtigung des § 214 Abs. 2 BauGB beachtliche Verletzung der Vorschriften über das Verhältnis des Bebauungsplans und des Flächennutzungsplans,
3. oder ein nach § 214 Abs. 3 Satz 2 BauGB beachtlicher Mangel des Abwägungsvorgangs,
wenn sie nicht innerhalb eines Jahres seit Bekanntmachung des Bebauungsplans und der 3. Änderung des Flächennutzungsplans schriftlich gegenüber der Stadt Rabenau geltend gemacht worden sind. Der Sachverhalt, der die Verletzung von Rechtsvorschriften oder den Mangel des Abwägungsvorgangs begründen soll, ist darzulegen.
Rabenau, 01.08.2025
gez. Paul
Bürgermeister
Anlagen
0_Verzeichnis Planunterlagen
1_Planzeichnung
2_Textliche Festsetzungen
3_Hinweise
4_Begründung
5_Umweltbericht
6_A1_Anlage Karte Fachbeitrag Artenschutz
6_A1_Fachbeitrag_Artenschutz
6_A2_Anlage1_Biotoptypen_Bestand
6_A2_Anlage1_Biotoptypen_Planung
6_A2_Eingriffsbilanzierung
6_A3_Anlage1_Karten
6_A3_Ergebnisbericht_faunistische_Kartierung
6_A4_Blendgutachten
7_A5_Potenzialflächenanalyse_für_Photovoltaik-Freiflächenanlagen
7_A6_Abwägungsprotokoll Zusammenfassende Erklärung_B-Plan
Bekanntmachung zum Satzungsbeschluss des Bebauungsplans „Kindertagesstätte Rabenau“ sowie zur Genehmigung der 4. Änderung des Flächennutzungsplans der Stadt Rabenau im Bereich des B-Plans
Der Stadtrat der Stadt Rabenau hat am 07.04.2025 in seiner öffentlichen Sitzung den Bebauungsplan „Kindertagesstätte Rabenau“ für Teilflächen der Flurstücke 412/3 und 416 der Gemarkung Rabenau als Satzung beschlossen.
Maßgebend ist die Planzeichnung des Bebauungsplans und die Begründung mit Stand September 2024 mit redaktionellen Korrekturen / Ergänzungen vom 07.04.2025. Der Planbereich ist in folgendem Kartenausschnitt dargestellt:
Der Bebauungsplan „Kindertagesstätte Rabenau“, tritt mit dieser Bekanntmachung in Kraft (§ 10 Abs. 3 BauGB).
Die 4. Änderung des Flächennutzungsplans wurde ebenso in der Sitzung des Stadtrates der Stadt Rabenau am 07.04.2025 beschlossen. Der folgende Kartenausschnitt ist für die Änderung maßgeblich:
Das Landratsamt Sächsische Schweiz-Osterzgebirge hat die vom Stadtrat der Stadt Rabenau in öffentlicher Sitzung beschlossene 4. Änderung des Flächennutzungsplans der Stadt Rabenau in der Fassung vom September 2024 mit redaktionellen Korrekturen / Ergänzungen vom 07.04.2025 mit Bescheid vom 19.05.2025, Az.: 0004-14.6.28-621.3-300.000-01.4, aufgrund von § 6 Abs. 1 Baugesetzbuch (BauGB) genehmigt
Die 4. Änderung des Flächennutzungsplans der Stadt Rabenau wird mit dieser Bekanntmachung wirksam.
Jedermann kann den Bebauungsplan „Kindertagesstätte Rabenau“ und die 4. Änderung des Flächennutzungsplans der Stadt Rabenau mit der jeweiligen dazugehörigen Begründung, dem Umweltbericht und den Anlagen sowie die zusammenfassende Erklärung nach § 6 Abs. 5 BauGB im Bauamt der Stadtverwaltung Rabenau, 2. Obergeschoss rechts, Markt 3, 01734 Rabenau, zu den üblichen Dienststunden einsehen und über den Inhalt Auskunft verlangen. Des Weiteren werden der Bebauungsplan und die 4. Änderung des Flächennutzungsplans auch auf der Homepage der Stadt Rabenau unter www.stadt-rabenau.de und in das zentrale Internetportal des Landes Sachsen unter www.bauleitplanung.sachsen.de eingestellt.
Auf die Vorschriften des § 44 Abs. 3 Satz 1 und 2 BauGB über die Fälligkeit etwaiger Entschädigungsansprüche, deren Leistung schriftlich beim Entschädigungspflichtigen zu beantragen ist, und des § 44 Abs. 4 BauGB über das Erlöschen von Entschädigungsansprüchen wird hingewiesen.
Auf die Voraussetzungen für die Geltendmachung der Verletzung von Verfahrens- und Formvorschriften und von Mängeln der Abwägung sowie Rechtsfolgen des § 215 Abs. 1 BauGB wird hingewiesen. Unbeachtlich werden demnach
- eine nach § 214 Abs. 1 Satz 1 Nr. 1 bis 3 des BauGB beachtliche Verletzung der dort bezeichneten Verfahrens- und Formvorschriften,
- eine unter Berücksichtigung des § 214 Abs. 2 BauGB beachtliche Verletzung der Vorschriften über das Verhältnis des Bebauungsplans und des Flächennutzungsplans,
- oder ein nach § 214 Abs. 3 Satz 2 BauGB beachtlicher Mangel des Abwägungsvorgangs,
wenn sie nicht innerhalb eines Jahres seit Bekanntmachung des Bebauungsplans und der 4. Änderung des Flächennutzungsplans schriftlich gegenüber der Stadt Rabenau geltend gemacht worden sind. Der Sachverhalt, der die Verletzung von Rechtsvorschriften oder den Mangel des Abwägungsvorgangs begründen soll, ist darzulegen.
Rabenau, 06.06.2025
gez. Paul
Bürgermeister
Anlagen
Begründung Baugrund- und Deklarationsuntersuchungen 29.03.2022
Begründung Entwässerungslösung 16.08.2024
Begründung ENDFASSUNG 07.04.2025
Planzeichnung ENDFASSUNG 07.04.2025
Umweltbericht ENDFASSUNG 07.04.2025
Zusammenfassende Erklärung_B-Plan Kita
Satzungsbeschluss des Bebauungsplans „Wohnbebauung Wilmsdorfer Straße – Oelsa“
Öffentliche Bekanntmachung
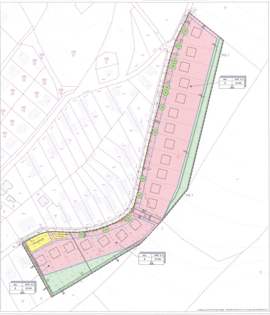
Der Stadtrat der Stadt Rabenau hat am 07.04.2025 in seiner öffentlichen Sitzung den Bebauungsplan „Wohnbebauung Wilmsdorfer Straße - Oelsa“ für die Flurstücke 202/6, 202/7 sowie Teilflächen der Flurstücke 202/5 und 204/1 der Gemarkung Großoelsa als Satzung beschlossen.
Maßgebend ist die Planzeichnung des Bebauungsplans und die Begründung mit Stand September 2024 mit redaktionellen Änderungen vom 07.04.2025. Der Planbereich befindet sich an der Wilmsdorfer Straße und ist in folgendem Kartenausschnitt dargestellt:
Der Bebauungsplan „Wohnbebauung Wilmsdorfer Straße - Oelsa“, tritt mit dieser Bekanntmachung in Kraft (§ 10 Abs. 3 BauGB).
Jedermann kann den Bebauungsplan „Wohnbebauung Wilmsdorfer Straße - Oelsa“ mit der Begründung und dem Umweltbericht sowie die zusammenfassende Erklärung nach § 6 Abs. 5 BauGB im Bauamt der Stadtverwaltung Rabenau, 2. Obergeschoss rechts, Markt 3, 01734 Rabenau, zu den üblichen Dienststunden einsehen und über den Inhalt Auskunft verlangen. Des Weiteren wird der Bebauungsplan auch auf der Homepage der Stadt Rabenau unter www.stadt-rabenau.de/rathaus/bauleitplanung/ und in das zentrale Internetportal des Landes Sachsen unter www.bauleitplanung.sachsen.de eingestellt.
Auf die Voraussetzungen für die Geltendmachung der Verletzung von Verfahrens- und Formvorschriften und von Mängeln der Abwägung sowie Rechtsfolgen des § 215 Abs. 1 BauGB wird hingewiesen. Unbeachtlich werden demnach
- eine nach § 214 Abs. 1 Satz 1 Nr. 1 bis 3 des BauGB beachtliche Verletzung der dort bezeichneten Verfahrens- und Formvorschriften,
- eine unter Berücksichtigung des § 214 Abs. 2 BauGB beachtliche Verletzung der Vorschriften über das Verhältnis des Bebauungsplans und des Flächennutzungsplans,
- oder ein nach § 214 Abs. 3 Satz 2 BauGB beachtlicher Mangel des Abwägungsvorgangs,
wenn sie nicht innerhalb eines Jahres seit Bekanntmachung des Bebauungsplans schriftlich gegenüber der Stadt Rabenau geltend gemacht worden sind. Der Sachverhalt, der die Verletzung von Rechtsvorschriften oder den Mangel des Abwägungsvorgangs begründen soll, ist darzulegen.
Rabenau, 02.05.2025
Paul
Bürgermeister
Anlagen
Begründung
Planzeichnung
Umweltbericht
zusammenfassende Erklärung
Bekanntmachung zum Satzungsbeschluss des Bebauungsplans „Erich-Weinert-Straße, Flurstück 50/33“ sowie zur Genehmigung der 2. Änderung des Flächennutzungsplans der Stadt Rabenau im Bereich des B-Plans
Der Stadtrat der Stadt Rabenau hat am 29.04.2024 in seiner öffentlichen Sitzung den Bebauungsplan „Erich-Weinert-Straße, Flurstück 50/33“ für eine Teilfläche des Flurstücks 50/33 der Gemarkung Kleinoelsa als Satzung beschlossen.
Maßgebend ist die Planzeichnung des Bebauungsplans und die Begründung mit Stand 28.03.2024. Der Planbereich ist in folgendem Kartenausschnitt dargestellt:
Der Bebauungsplan „Erich-Weinert-Straße, Flurstück 50/33“, tritt mit dieser Bekanntmachung in Kraft (§ 10 Abs. 3 BauGB).
Die 2. Änderung des Flächennutzungsplans wurde ebenso in der Sitzung des Stadtrates der Stadt Rabenau am 29.04.2024 beschlossen. Der folgende Kartenausschnitt ist für die Berichtigung maßgeblich:
Das Landratsamt Sächsische Schweiz-Osterzgebirge hat die vom Stadtrat der Stadt Rabenau in öffentlicher Sitzung beschlossene 2. Änderung des Flächennutzungsplans der Stadt Rabenau in der Fassung vom 28.03.2024 mit Bescheid vom 26.06.2024, Az.: 0004-14.6.28-621.3-300.000-01.2, aufgrund von § 6 Abs. 1 Baugesetzbuch (BauGB) genehmigt
Die 2. Änderung des Flächennutzungsplans der Stadt Rabenau wird mit dieser Bekanntmachung wirksam.
Jedermann kann den Bebauungsplan „Erich-Weinert-Straße – Flurstück 50/33“ und die 2. Änderung des Flächennutzungsplans der Stadt Rabenau mit der jeweiligen dazugehörigen Begründung und dem Umweltbericht sowie die zusammenfassende Erklärung nach § 6 Abs. 5 BauGB im Bauamt der Stadtverwaltung Rabenau, 2. Obergeschoss rechts, Markt 3, 01734 Rabenau, zu den üblichen Dienststunden einsehen und über den Inhalt Auskunft verlangen. Des Weiteren werden der Bebauungsplan und die 2. Änderung des Flächennutzungsplans auch auf der Homepage der Stadt Rabenau unter www.stadt-rabenau.de und in das zentrale Internetportal des Landes Sachsen unter www.bauleitplanung.sachsen.de eingestellt.
Auf die Voraussetzungen für die Geltendmachung der Verletzung von Verfahrens- und Formvorschriften und von Mängeln der Abwägung sowie Rechtsfolgen des § 215 Abs. 1 BauGB wird hingewiesen. Unbeachtlich werden demnach
- eine nach § 214 Abs. 1 Satz 1 Nr. 1 bis 3 des BauGB beachtliche Verletzung der dort bezeichneten Verfahrens- und Formvorschriften,
- eine unter Berücksichtigung des § 214 Abs. 2 BauGB beachtliche Verletzung der Vorschriften über das Verhältnis des Bebauungsplans und des Flächennutzungsplans ,
- oder ein nach § 214 Abs. 3 Satz 2 BauGB beachtlicher Mangel des Abwägungsvorgangs,
wenn sie nicht innerhalb eines Jahres seit Bekanntmachung des Bebauungsplans und der 2. Änderung des Flächennutzungsplans schriftlich gegenüber der Stadt Rabenau geltend gemacht worden sind. Der Sachverhalt, der die Verletzung von Rechtsvorschriften oder den Mangel des Abwägungsvorgangs begründen soll, ist darzulegen.
Anlagen
Planzeichnung
Begruendung
2. Änderung_Flächennutzungsplan Rabenau_Planzeichnung
2. Änderung_Flächennutzungsplan Rabenau_Begründung
Umweltbericht
Zusammenfassung / Erklärung
Rabenau, 02.08.2024
gez. Paul
Bürgermeister
Bebauungsplan „An der alten Ziegelei“ für die Flurstücke 420/8, 418/9, 419/3 sowie Teilflächen der Flurstücke 418/7, 418/8, 419/1, 419/2, 420/6 und 420/7 der Gemarkung Rabenau
Satzungsbeschluss des Bebauungsplans „An der alten Ziegelei“, Flurstücke 420/8, 418/9, 419/3 sowie Teilflächen der Flurstücke 418/7, 418/8, 419/1,419/2, 420/6 und 420/7 der Gemarkung Rabenau
Der Stadtrat der Stadt Rabenau hat am 04.09.2023 in seiner öffentlichen Sitzung den Bebauungsplan „An der alten Ziegelei“, Flurstücke 420/8, 418/9, 419/3 sowie Teilflächen der Flurstücke 418/7, 418/8, 419/1,419/2, 420/6 und 420/7 der Gemarkung Rabenau mit integriertem Grünordnungsplan als Satzung beschlossen.
Maßgebend sind die Planzeichnung des Bebauungsplans, die textlichen Festsetzungen und die Begründung mit Stand 25.07.2023. Der Planbereich ist in folgendem Kartenausschnitt dargestellt:
Der Bebauungsplan „An der alten Ziegelei“, Flurstücke 420/8, 418/9, 419/3 sowie Teilflächen der Flurstücke 418/7, 418/8, 419/1,419/2, 420/6 und 420/7 der Gemarkung Rabenau, tritt mit dieser Bekanntmachung in Kraft (§ 10 Abs. 3 BauGB).
Der Bebauungsplan, bestehend aus Planzeichnung, Teil B-Textliche Festsetzung, die Begründung mit integriertem Grünordnungsplan und der Umweltbericht mit Anlagen 1 bis 8 sowie die zusammenfassende Erklärung nach § 10 a Abs. 1 BauGB können im Bauamt der Stadt Rabenau, 2. OG, Markt 3, 01734 Rabenau während der üblichen Dienststunden eingesehen werden. Jedermann kann den Bebauungsplan einsehen und über seinen Inhalt Auskunft verlangen. Des Weiteren wird der Bebauungsplan mit allen Anlagen auch auf der Homepage der Stadt Rabenau unter www.stadt-rabenau.de und in das zentrale Internetportal des Landes Sachsen unter www.bauleitplanung.sachsen.de eingestellt.
Auf die Vorschriften des § 44 Abs. 3 Satz 1 und 2 BauGB über die Fälligkeit etwaiger Entschädigungsansprüche, deren Leistung schriftlich beim Entschädigungspflichtigen zu beantragen ist, und des § 44 Abs. 47 BauGB über das Erlöschen von Entschädigungsansprüchen wird hingewiesen.
Es wird darauf hingewiesen, dass eine Verletzung der im § 214 Abs. 1 Satz 1 Nr. 1-3 des BauGB bezeichneten Verfahrens- und Formvorschriften, eine Berücksichtigung des § 214 Abs. 2 beachtliche Verletzung der Vorschriften über das Verhältnis des Bebauungsplans und des Flächennutzungsplans oder aber nach § 214 Abs. 3 Satz 2 BauGB beachtlicher Mangel des Abwägungsvorgangs nur beachtlich werden, wenn sie innerhalb eines Jahres seit dieser Bekanntmachung schriftlich gegenüber der Stadt geltend gemacht worden sind. Der Sachverhalt, der die Verletzung von Rechtsvorschriften oder den Mangel des Abwägungsvorgangs begründen soll, ist darzulegen.
Rabenau, 06.10.2023
gez. Paul
Bürgermeister
Anlagen:
Zusammenfassende Erklärung_mit Unterschrift
Satzungstext
Bebauungsplan_Rabenau_Satzung_Inhaltsverzeichnis_Ordner
Bebauungsplan_Rabenau_Satzung_Teil_A+B
Bebauungsplan_Rabenau_Satzung_Teil_C_Begründung
Bebauungsplan_Rabenau_Satzung_Umweltbericht
Umweltbericht Anlage 1_Plan Bestand Biotoptypen_- Kopie
Umweltbericht_Anlage 2_Maßnahmenplan_E1_Streuobstwiese Großoelsa - Kopie
Umweltbericht_Anlage 3_NSI_Bebauungsplan_Rabenau_Bericht_- Kopie
Umweltbericht_Anlage 4_NSI_Bebauungsplan_Rabenau_Feldlerche_Anschreiben - Kopie
Umweltbericht_Anlage 5_ABD_Schallimmissionsprognose_Bebauungsplan Rabenau_- Kopie
Umweltbericht_Anlage 6_rabal_Baugrundgutachten_Bebauungsplan_Rabenau_- Kopie
Umweltbericht_Anlage 7_Beratungsprotokoll UNB_Landratsamt 13.09.2022 - Kopie
Umweltbericht_Anlage 8_Beratungsprotokoll UNB_Landratsamt_22.09.2022 - Kopie
Beteiligung der Öffentlichkeit
Der Stadtrat der Stadt Rabenau hat am 19.06.2017 in öffentlicher Sitzung beschlossen, einen Bebauungsplan für die Flurstücke 420/8, 418/9 und 419/3 der Gemarkung Rabenau aufzustellen.
Der rechtskräftige Flächennutzungsplan der Stadt Rabenau weist den Geltungsbereich als geplante Wohnbaufläche aus. Entsprechend § 8 Abs. 2 BauGB ist daher sichergestellt, dass der Bebauungsplan aus dem Flächennutzungsplan entwickelt wird.
Im Zuge der weiteren Planungen wurden Teilflächen der Flurstücke 418/7, 418/8, 419/1, 419/2, 420/6 und 420/7 der Gemarkung Rabenau ebenfalls in die Planung mit einbezogen. Dies wurde mit Beschluss-Nr. 56/2021 des Stadtrates der Stadt Rabenau am 13.12.2021 bestätigt.
Vorgesehen ist, Baurecht für 22 Einfamilienhäuser und ein Mehrfamilienhaus zu schaffen. Der Geltungsbereich befindet sich an der Obernaundorfer Straße, zwischen dem Abzweig Feldstraße und der Zufahrt zum Stadion der Möbelwerker. Er geht aus dem folgenden Kartenausschnitt hervor:
Im vergangenen Jahr erfolgte dazu bereits die frühzeitigte Beteiligung der Öffentlichkeit und der Behörden. Der Vorentwurf wurde unter Berücksichtigung der Stellungnahmen überarbeitet.
Der Stadtrat der Stadt Rabenau hat in der Sitzung am 06.02.2023 den Entwurf des Bebauungsplanes „An der alten Ziegelei“ (für die Flurstücke 420/8, 418/9, 419/3 sowie Teilflächen der Flurstücke 418/7, 418/8, 419/1,419/2, 420/6 und 420/7 der Gemarkung Rabenau), bestehend aus der Planzeichnung Stand Dezember 2022,
dem Teil B-Textliche Festsetzung und der Begründung mit Umweltbericht (Dezember 2022), Artenschutzrechtlicher Prüfung (Dezember 2021 mit Ergänzung vom 01.09.2022) und Schallimmissionsprognose (November 2021) sowie das Baugrundgutachten (Juni 2019 mit redaktionellen Änderungen April 2022) und die Abstimmungsprotokolle mit der Unteren Naturschutzbehörde vom 13.09.2022 und 22.09.2022 mit Beschluss-Nr. 4/2023 gebilligt sowie die Beteiligung der Öffentlichkeit nach § 3 Abs. 2 BauGB und die Beteiligung der Behörden nach § 4 Abs. 2 BauGB beschlossen.
Die Planzeichnung Teil A, der Teil B-Textliche Festsetzung und Teil C - Begründung mit Umweltbericht, Artenschutzrechtlicher Prüfung, Schallimmissionsprognose, Baugrundgutachten, die Abstimmungsprotokolle mit der Unteren Naturschutzbehörde sowie Stellungnahmen mit umweltrelevantem Inhalt aus der frühzeitigen Öffentlichkeitsbeteiligung, die Grundlage der Überarbeitung des Vorentwurfes waren, liegen
in der Zeit vom 13. März bis einschließlich 21. April 2023
im Bauamt der Stadtverwaltung Rabenau (2. OG), Markt 3, 01734 Rabenau, während der Dienststunden öffentlich aus.
Die Dienststunden sind
Montag/Mittwoch/Donnerstag: 7:00 - 12:00 und 13.00 - 16:00 Uhr
Dienstag: 7:00 - 12.00 und 13.00 - 18:00 Uhr
Freitag: 7:00 - 12:00 Uhr.
Wir bitten um eine vorherige telefonische Terminabstimmung für die Einsichtnahme im Rathaus.
Zusätzlich werden die Unterlagen gemäß § 10a Abs. 2 BauGB auf der Homepage der Stadt Rabenau unter www.stadt-rabenau.de und in das zentrale Landesportal Bauleitplanung Sachsen unter www.bauleitplanung.sachsen.de eingestellt.
Folgende Arten umweltbezogener Informationen liegen vor (Umweltbericht, Gutachten, Stellungnahmen, Abstimmungsprotokolle):
Fläche: Flächeninanspruchnahme bisheriger landwirtschaftlicher Flächen als künftige Siedlungsfläche;
Schutzgut Mensch: Lärmbelastung der geplanten Bebauung durch angrenzende Nutzung und Maßnahmen zum Schutz, Aufenthaltsfunktion durch öffentliche Grünfläche
Schutzgut Arten und Biotope: Vegetationsbestand und Biotoptypen, Vorkommen geschützter Arten und Maßnahmen zur Entwicklung neuer Biotopflächen außerhalb des Plangebietes
Schutzgut Boden: Bodenverhältnisse, Baugrunduntersuchung, Speichervermögen, Erosion
Schutzgut Wasser: Oberflächengewässer, Grundwasser, geplante Maßnahmen zur Rückhaltung und verzögerten Einleitung von Niederschlagswasser
Schutzgut Luft und Klima: lokalklimatische Ausgangssituation und zu erwartende Veränderungen; Minderung lokalklimatischer Auswirkungen der Neubebauung
Landschafts- und Ortsbild, Erholungsfunktion: Beschreibung und Bewertung der aktuellen Situation und der zu erwartenden Veränderungen einschließlich Minimierung der Auswirkungen
Kultur- und sonstige Sachgüter: keine Angaben mangels Vorkommen
Wechselwirkungen: Aussagen zu Wechselwirkungen zwischen den Schutzgütern.
Eingriffs- und Ausgleichsbilanzierung für die vorgenannten Schutzgüter als Grundlage der Abwägung und Festsetzung von externen Ausgleichmaßnahmen
Während der Beteiligung besteht allgemein die Möglichkeit, Einsicht in die Planunterlagen des Bebauungsplanes zu nehmen und Stellungnahmen schriftlich oder elektronisch bei der Stadtverwaltung Rabenau, Markt 3, 01734 Rabenau abzugeben oder während der Sprechzeiten im Bauamt der Stadtverwaltung Rabenau (2. OG), Markt 3, 01734 Rabenau, zur Niederschrift vorzubringen.
Nicht fristgerecht abgegebene Stellungnahmen können bei der Beschlussfassung über den Bebauungsplan unberücksichtigt bleiben.
Rabenau, 03.03.2023
Paul
Bürgermeister
Anlagen:
Bebauungsplan Entwurf_Inhaltsverzeichnis
Bebauungsplan_Entwurf_Teil_A+B
Bebauungsplan_Entwurf_Teil_C_Begründung
Bebauungsplan_Entwurf_Umweltbericht
Plan Bestand Biotoptypen
Maßnahmenplan_Ersatzmaßnahme_Streuobstwiese Großoelsa
Kartenauszug Ausgleichsmaßnahme
Artenschutz-Prüf-Bericht
Artenschutz Anmerkungen zur Feldlerche
Schallimmissionsprognose
Baugrundgutachten
Beratungsprotokoll Bilanzierung, Naturschutz
Beratungsprotokoll Abstimmung zur möglichen Eingriffskompensation
Stellungnahmen mit umweltbezogenen Informationen aus der frühzeitigen Behördenbeteiligung:
Landesdirektion_Sachsen vom 02.02.2022
Landkreis Sächsische Schweiz/Osterzgebirge vom 28.02.2022
Landesamt für Umwelt, Landwirtschaft und Geologie vom 22.02.2022
Sächsisches Oberbergamt vom 10.02.2022
Abwasserzweckverband Oelsabachtal vom 23.02.2022
Satzungsbeschluss des Bebauungsplans „Oelsa – Rabenauer Weg“, Flurstücke 92/1, 18/6 und 18/7 der Gemarkung Kleinoelsa
Der Stadtrat der Stadt Rabenau hat am 09.11.2020 in seiner öffentlichen Sitzung den Bebauungsplan „Oelsa – Rabenauer Weg“, Flurstücke 92/1, 18/6 und 18/7 der Gemarkung Kleinoelsa als Satzung beschlossen.
Maßgebend sind die Planzeichnung des Bebauungsplans, die textlichen Festsetzungen und die Begründung mit Stand April 2020 mit redaktionellen Änderungen vom 09.11.2020. Der Planbereich ist in folgendem Kartenausschnitt dargestellt:
Der Bebauungsplan Oelsa – Rabenauer Weg“ Flurstücke 92/1, 18/6 und 18/7 der Gemarkung Kleinoelsa, tritt mit dieser Bekanntmachung in Kraft (§ 10 Abs. 3 BauGB).
Der Bebauungsplan, bestehend aus Planzeichnung, Textlichen Festsetzungen und Begründung mit Anlagen können im Bauamt der Stadt Rabenau, 2. OG, Markt 3, 01734 Rabenau während der üblichen Dienststunden eingesehen werden. Jedermann kann den Bebauungsplan einsehen und über seinen Inhalt Auskunft verlangen. Des Weiteren wird der Bebauungsplan mit allen Anlagen auch auf der
Homepage der Stadt Rabenau unter www.stadt-rabenau.de und in das zentrale Internetportal des Landes Sachsen unter www.bauleitplanung.sachsen.de eingestellt.
Auf die Vorschriften des § 44 Abs. 3 Satz 1 und 2 BauGB über die Fälligkeit etwaiger Entschädigungsansprüche, deren Leistung schriftlich beim Entschädigungspflichtigen zu beantragen ist, und des § 44 Abs. 4 BauGB über das Erlöschen von Entschädigungsansprüchen wird hingewiesen.
Es wird darauf hingewiesen, dass eine Verletzung der im § 214 Abs. 1 Satz 1 Nr. 1-3 des BauGB bezeichneten Verfahrens- und Formvorschriften, eine Berücksichtigung des § 214 Abs. 2 beachtliche Verletzung der Vorschriften über das Verhältnis des Bebauungsplans und des Flächennutzungsplans oder aber nach § 214 Abs. 3 Satz 2 BauGB beachtlicher Mangel des Abwägungsvorgangs nur beachtlich werden, wenn sie innerhalb eines Jahres seit dieser Bekanntmachung schriftlich gegenüber der Stadt geltend gemacht worden sind. Der Sachverhalt, der die Verletzung von Rechtsvorschriften oder den Mangel des Abwägungsvorgangs begründen soll, ist darzulegen.
Rabenau, 04.12.2020
gez. Paul Bürgermeister
Anlagen:
Anlage 1 Begründung
Anlage 2 Begründung
Anlage 3 Begründung
Begründung Endfassung 09.11.2020
Bebauungsplan Endfassung 09.11.2020
Bekanntmachung zum Satzungsbeschluss des Bebauungsplans “Wohnbebauung Oelsa Kirchstr.” sowie zur 1. Berichtigung des Flächennutzungsplans der Stadt Rabenau im Bereich des B-Plans
Der Stadtrat der Stadt Rabenau hat am 27.04.2020 in seiner öffentlichen Sitzung den Bebauungsplan „Wohnbebauung Oelsa Kirchstraße“ für Teilflächen der Flurstücke 17/7 und 231/5 der Gemarkung Großoelsa als Satzung beschlossen.
Maßgebend ist die Planzeichnung des Bebauungsplans und die Begründung mit Stand 15:11:2019 mit redaktionellen Änderungen vom 18:03:2020. Der Planbereich ist in folgendem Kartenausschnitt dargestellt:
Der Bebauungsplan „Wohnbebauung Oelsa Kirchstraße“, tritt mit dieser Bekanntmachung in Kraft (§ 10 Abs. 3 BauGB). Zugleich wird hiermit bekannt gemacht, dass der Flächennutzungsplan der Stadt Rabenau gemäß § 13 a Abs. 2 Nr. 2 BauGB im Wege der 1. Berichtigung an die Festsetzungen des B-Plans angepasst wird.
Die 1. Berichtigung des Flächennutzungsplans wurde ebenso in der Sitzung des Stadtrates der Stadt Rabenau am 27.04.2020 gebilligt. Die Anpassung des Flächennutzungsplans im Wege der Berichtigung gemäß § 13 a Abs. 2 Nr. 2 BauGB stellt einen redaktionellen Vorgang dar. Der Gesetzgeber hat dafür weder ein förmliches Verfahren noch die Genehmigung durch die Aufsichtsbehörde vorgegeben. Der folgende Kartenausschnitt ist für die Berichtigung maßgeblich:
Der Bebauungsplan mit Begründung sowie die Berichtigung des Flächennutzungsplans mit Begründung kann im Bauamt der Stadt Rabenau, 2. OG, Markt 3, 01734 Rabenau während der üblichen Dienststunden eingesehen werden. Jedermann kann den Bebauungsplan sowie die Berichtigung des Flächennutzungsplans einsehen und über deren Inhalte Auskunft verlangen.
Auf die Vorschriften des § 44 Abs. 3 Satz 1 und 2 BauGB über die Fälligkeit etwaiger Entschädigungsansprüche, deren Leistung schriftlich beim Entschädigungspflichtigen zu beantragen ist, und des § 44 Abs. 47 BauGB über das Erlöschen von Entschädigungsansprüchen wird hingewiesen.
Es wird darauf hingewiesen, dass eine Verletzung der im § 214 Abs. 1 Satz 1 Nr. 1-3 des BauGB bezeichneten Verfahrens- und Formvorschriften, eine Berücksichtigung des § 214 Abs. 2 beachtliche Verletzung der Vorschriften über das Verhältnis des Bebauungsplans und des Flächennutzungsplans oder aber nach § 214 Abs. 3 Satz 2 BauGB beachtlicher Mangel des Abwägungsvorgangs nur beachtlich werden, wenn sie innerhalb eines Jahres seit dieser Bekanntmachung schriftlich gegenüber der Stadt geltend gemacht worden sind. Der Sachverhalt, der die Verletzung von Rechtsvorschriften oder den Mangel des Abwägungsvorgangs begründen soll, ist darzulegen.
Rabenau, 05.06.2020
gez. Paul
Bürgermeister
200318_Satzung_B-Plan_Oelsa_textliche Festsetzungen
200318_Satzung_B-Plan_Oelsa_Planzeichnung
200318_Satzung_B-Plan_Oelsa_Begründung
200318_Berichtigung_FNP_Planzeichnung
200318_Berichtigung_FNP_Begruendung
Satzungsbeschluss des Bebauungsplans “Wohngebiet Talblick an der Obernaundorfer Str.”, Flurstücke 401 und 405 der Gemarkung Rabenau
Der Stadtrat der Stadt Rabenau hat am 09.12.2019 in seiner öffentlichen Sitzung den Bebauungsplan „Wohngebiet Talblick an der Obernaundorfer Straße“, Flurstücke 401 und 405 der Gemarkung Rabenau mit integriertem Grünordnungsplan als Satzung beschlossen.
Maßgebend sind die Planzeichnung des Bebauungsplans, die textlichen Festsetzungen und die Begründung mit Stand Oktober 2019. Der Planbereich ist in folgendem Kartenausschnitt dargestellt:
Der Bebauungsplan Talblick“ an der Obernaundorfer Straße, Flurstücke 401 und 405 der Gemarkung Rabenau, tritt mit dieser Bekanntmachung in Kraft
(§ 10 Abs. 3 BauGB).
Der Bebauungsplan, bestehend aus Planzeichnung, Teil B-Textliche Festsetzung, die Begründung mit integriertem Grünordnungsplan und der Umweltbericht sowie die zusammenfassende Erklärung nach § 10 a Abs. 1 BauGB können im Bauamt der Stadt Rabenau, 2. OG, Markt 3, 01734 Rabenau während der üblichen
Dienststunden eingesehen werden. Jedermann kann den Bebauungsplan einsehen und über seinen Inhalt Auskunft verlangen. Des Weiteren wird der Bebauungsplan mit allen Anlagen auch auf der Homepage der Stadt Rabenau unter www.stadt-rabenau.de und in das zentrale Internetportal des Landes Sachsen unter www.bauleitplanung.sachsen.de eingestellt.
Auf die Vorschriften des § 44 Abs. 3 Satz 1 und 2 BauGB über die Fälligkeit etwaiger Entschädigungsansprüche, deren Leistung schriftlich beim Entschädigungspflichtigen zu beantragen ist, und des § 44 Abs. 4 BauGB über das Erlöschen von Entschädigungsansprüchen wird hingewiesen.
Es wird darauf hingewiesen, dass eine Verletzung der im § 214 Abs. 1 Satz 1 Nr. 1-3 des BauGB bezeichneten Verfahrens- und Formvorschriften, eine Berücksichtigung des § 214 Abs. 2 beachtliche Verletzung der Vorschriften über das Verhältnis des Bebauungsplans und des Flächennutzungsplans oder aber nach § 214 Abs. 3 Satz 2 BauGB beachtlicher Mangel des Abwägungsvorgangs nur beachtlich werden, wenn sie innerhalb eines Jahres seit dieser Bekanntmachung schriftlich gegenüber der Stadt geltend gemacht worden sind. Der Sachverhalt, der die Verletzung von Rechtsvorschriften oder den Mangel des Abwägungsvorgangs begründen soll, ist darzulegen.
Rabenau, 10.12.2019
gez. Paul
Anlagen:
1 Planteil A Satzung
2 Teil B Festsetzungen 10-2019 - Satzung
3 Begründung 10-2019
4 Umweltbericht 07-2019
Anlage 1 Geotechnischer-Bericht
Anlage 2 Straßenplanung CIC
Anlage 3 Schallimmissionsprognose Straßenverkehrslärm
Anlage 4 CIC aktualisierte Unterlagen
Zusammenfassende Erklärung
Öffentliche Bekanntmachung-Satzungsbeschluss des Bebauungsplans für das Flurstück 65/2 der Gemarkung Spechtritz
Der Stadtrat der Stadt Rabenau hat am 16.09.2019 in seiner öffentlichen Sitzung den Bebauungsplan für das Flurstück 65/2 der Gemarkung Spechtritz als Satzung beschlossen.
Maßgebend ist die Planzeichnung des Bebauungsplans und die Begründung mit Stand Mai 2019 mit redaktionellen Änderungen durch die Abwägung vom 16.09.2019. Der Planbereich ist in folgendem Kartenausschnitt dargestellt:
Der Bebauungsplan für das Flurstück 65/2 der Gemarkung Spechtritz, tritt mit dieser Bekanntmachung in Kraft (§ 10 Abs. 3 BauGB).
Der Bebauungsplan mit Begründung kann im Bauamt der Stadt Rabenau, 2. OG, Markt 3, 01734 Rabenau während der üblichen Dienststunden eingesehen werden. Jedermann kann den Bebauungsplan einsehen und über seinen Inhalt Auskunft verlangen.
Auf die Vorschriften des § 44 Abs. 3 Satz 1 und 2 BauGB über die Fälligkeit etwaiger Entschädigungsansprüche, deren Leistung schriftlich beim Entschädigungspflichtigen
zu beantragen ist, und des § 44 Abs. 47 BauGB über das Erlöschen von Entschädigungsansprüchen wird hingewiesen.
Es wird darauf hingewiesen, dass eine Verletzung der im § 214 Abs. 1 Satz 1 Nr. 1-3 des BauGB bezeichneten Verfahrens- und Formvorschriften, eine Berücksichtigung des § 214 Abs. 2 beachtliche Verletzung der Vorschriften über das Verhältnis des Bebauungsplans und des Flächennutzungsplans oder aber nach § 214 Abs. 3 Satz 2 BauGB beachtlicher Mangel des Abwägungsvorgangs nur beachtlich werden, wenn sie innerhalb eines Jahres seit dieser Bekanntmachung schriftlich gegenüber der Stadt geltend gemacht worden sind. Der Sachverhalt, der die Verletzung von Rechtsvorschriften oder den Mangel des Abwägungsvorgangs begründen soll, ist darzulegen.
Rabenau, 11.10.2019
gez. Paul
Anlagen:
Begründung 16.09.2019
Anlage zur Begründung 16.09.2019
Verfahrensvermerke
Planzeichnung 16.09.2019
Öffentliche Bekanntmachung Satzungsbeschluss des Bebauungsplans für das Flurstück 50/30 der Gemarkung Kleinoelsa
Der Stadtrat der Stadt Rabenau hat am 11.02.2019 in seiner öffentlichen Sitzung den Bebauungsplan für das Flurstück 50/30 der Gemarkung Kleinoelsa als Satzung beschlossen. Maßgebend ist die Planzeichnung des Bebauungsplans und die Begründung mit Stand August 2018 mit redaktionellen Änderungen durch die Abwägung vom 11.02.2019. Der Planbereich ist in folgendem Kartenausschnitt dargestellt:
Der Bebauungsplan für das Flurstück 50/30 der Gemarkung Kleinoelsa, tritt mit dieser Bekanntmachung in Kraft (§ 10 Abs. 3 BauGB).
Der Bebauungsplan mit Begründung kann im Bauamt der Stadt Rabenau, 2. OG, Markt 3, 01734 Rabenau während der üblichen Dienststunden eingesehen werden. Jedermann kann den Bebauungsplan einsehen und über seinen Inhalt Auskunft verlangen. Auf die Vorschriften des § 44 Abs. 3 Satz 1 und 2 BauGB über die Fälligkeit etwaiger Entschädigungsansprüche, deren Leistung schriftlich beim Entschädigungspflichtigen zu beantragen ist, und des § 44 Abs. 47 BauGB über das Erlöschen von Entschädigungsansprüchen wird hingewiesen.
Es wird darauf hingewiesen, dass eine Verletzung der im § 214 Abs. 1 Satz 1 Nr. 1-3 des BauGB bezeichneten Verfahrens- und Formvorschriften, eine Berücksichtigung des § 214 Abs. 2 beachtliche Verletzung der Vorschriften über das Verhältnis des Bebauungsplans und des Flächennutzungsplans oder aber nach § 214 Abs. 3 Satz 2 BauGB beachtlicher Mangel des Abwägungsvorgangs nur beachtlich werden, wenn sie innerhalb eines Jahres seit dieser Bekanntmachung schriftlich gegenüber der Stadt geltend gemacht worden sind. Der Sachverhalt, der die Verletzung von Rechtsvorschriften oder den Mangel des Abwägungsvorgangs begründen soll, ist darzulegen.
Rabenau, 08.03.2019
gez. Paul
Bürgermeister
Begründung 09.01.2019
Planzeichnung 09.01.2019
Verfahrensvermerke




















